Здравствуйте!
Квартира 4-комн 104 кв м: спальня 15 м, детская 14 м, кабинет 10 м, гостиная (объединена с кухней и коридором) - 45 м. На приток в каждой из комнат установлены по 1-му EMF35. Отток - "вытяжка с механическим побуждением" (вентилятор на крыше дома), около 2-х совмещенных с/у вентшахта мощностью (по проекту застройщика) 65 куб. м/час, в бывшей кухне вентшахта 70 куб. м/час. Предпоследний этаж 29-этажного дома.
Хотелось бы, заходя в квартиру с улицы, чувствовать не затхлый воздух, а свежий, избежать запотевания окон и зеркала в ванной, плесени, над плитой иметь вытяжку, подключенную к вентшахте (опыт показал - включаться она будет только на мин. скорости, на которой почти не шумит), а в р-не б. "кухонной" вентшахты - решетку для вентиляции.
Говорят, что эксплуатирующая компания не разрешает ставить механические побуждающие устройства на вентканалы (нужно утонять).
С другой стороны, ее инженер по кондиционированию и вентиляции утверждал, что вытяжку в кухне, подключенную к вентшахте, небольшой мощностью (не более 400 куб м/час) согласуют. Как-то первое со вторым не стыкуется.
Плз подскажите, сможете посоветовать, как доукомплектовать имеющееся оборудование до оптимально работающего решения (главное - свежий воздух)?
Система вентиляции в 4-комн. квартире 104 кв. м
Re: Система вентиляции в 4-комн. квартире 104 кв. м
Добрый день!Здравствуйте!
Квартира 4-комн 104 кв м: спальня 15 м, детская 14 м, кабинет 10 м, гостиная (объединена с кухней и коридором) - 45 м. На приток в каждой из комнат установлены по 1-му EMF35. Отток - "вытяжка с механическим побуждением" (вентилятор на крыше дома), около 2-х совмещенных с/у вентшахта мощностью (по проекту застройщика) 65 куб. м/час, в бывшей кухне вентшахта 70 куб. м/час. Предпоследний этаж 29-этажного дома.
Хотелось бы, заходя в квартиру с улицы, чувствовать не затхлый воздух, а свежий, избежать запотевания окон и зеркала в ванной, плесени, над плитой иметь вытяжку, подключенную к вентшахте (опыт показал - включаться она будет только на мин. скорости, на которой почти не шумит), а в р-не б. "кухонной" вентшахты - решетку для вентиляции.
Говорят, что эксплуатирующая компания не разрешает ставить механические побуждающие устройства на вентканалы (нужно утонять).
С другой стороны, ее инженер по кондиционированию и вентиляции утверждал, что вытяжку в кухне, подключенную к вентшахте, небольшой мощностью (не более 400 куб м/час) согласуют. Как-то первое со вторым не стыкуется.
Плз подскажите, сможете посоветовать, как доукомплектовать имеющееся оборудование до оптимально работающего решения (главное - свежий воздух)?
1. "Вентилятор на крыше дома" должен работать постоянно. Очень часто УК не включает его, пока не закончатся отделочные работы (иначе вся вытяжная система забьется пылью) или все квартиры не будут раскуплены (экономия энергии). При таком неработающем вентиляторе воздухообмена нормального не будет. Оконные клапаны в квартире-"распашонке" (выход окон на два противоположных фасада) сгладят ситуацию.
2. Вопрос с "кухонной вытяжкой" неоднозначный, надо внимательно смотреть как эта МЕХАНИЧЕСКАЯ дополнительная вытяжка будет согласоваться с уже имеющейся МЕХАНИЧЕСКОЙ вытяжкой. Это вопрос к инженеру - проектировщику УК, знакомому с устройством вентиляции данного дома. Лучше поставить не зонт с выбросом грязного воздуха в вытяжные каналы, а ВОЗДУХООЧИСТИТЕЛЬ над плитой (возврат воздуха в объем кухни после прохождения масляного и угольного фильтра).
Re: Система вентиляции в 4-комн. квартире 104 кв. м
Спасибо за ответ.
Пытаюсь ответить вам 3-й раз: при нажатии "Отправить" ваш сервер повторно просит залогиниться и письмо пропадает:(
Про то, что вентиляции не будет, пока Экспл компания не запустит вентилятор на крыше, понял (кв не распашонка).
Про вытяжку тоже: нужно или выбрать в пределах мощности кухонной вентшахты, или поставить с фильтром.
Застройщиком установлено оборудование, исходя не из качества вентиляции, а из экономии. На какие оконные клапаны лучше заменить EMF35 (последние без датчика влажности)?
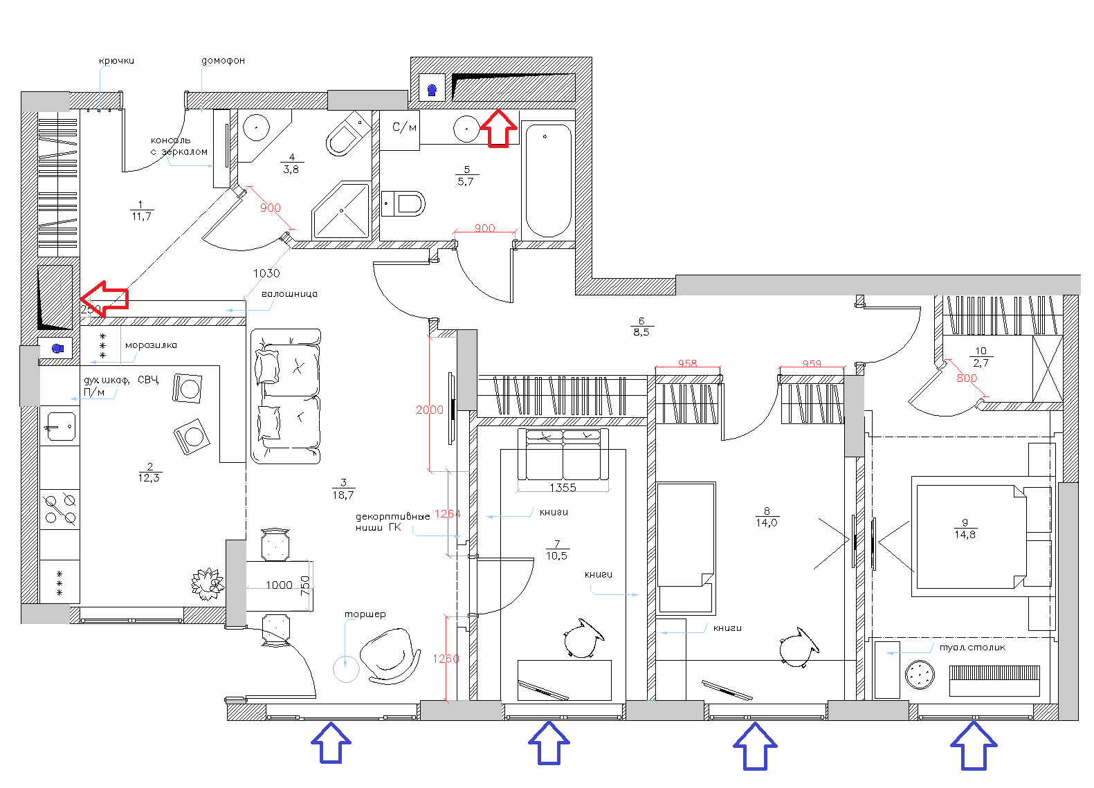
Возможно, на комнаты 10, 14 и 15 кв. м по 1-му клапану достаточно. Но для гостиной (45 кв. м, объединяет бывшие зал, кухню и прихожую), скорее всего, 1-го маловато (в ней будут собираться и все 3 жителя, а иногда и гости)? (сх. кв во вложении)
Нужны ли регулирующие поток воздуха "решетки" в санузлах и на кухне, или при такой схеме (с "вентилятором" на крыше) они избыточны, и регулирование должно осуществляться за счет регулируемых клапанов на окнах?
Вероятно, необходимы обратные клапаны на "окошках" вентшахт (на 95% уверен, что жильцы установят и вентиляторы в санузлах, и вытяжки - инженеры Экспл компании согласовывают вытяжки с мощностью не более 400 куб м/час)? Есть ли у вас подобное оборудование?
Существует ли техническое решение для избежания запахов пищи в гостиной?
Заранее благодарен,
Владимир
Пытаюсь ответить вам 3-й раз: при нажатии "Отправить" ваш сервер повторно просит залогиниться и письмо пропадает:(
Про то, что вентиляции не будет, пока Экспл компания не запустит вентилятор на крыше, понял (кв не распашонка).
Про вытяжку тоже: нужно или выбрать в пределах мощности кухонной вентшахты, или поставить с фильтром.
Застройщиком установлено оборудование, исходя не из качества вентиляции, а из экономии. На какие оконные клапаны лучше заменить EMF35 (последние без датчика влажности)?
Возможно, на комнаты 10, 14 и 15 кв. м по 1-му клапану достаточно. Но для гостиной (45 кв. м, объединяет бывшие зал, кухню и прихожую), скорее всего, 1-го маловато (в ней будут собираться и все 3 жителя, а иногда и гости)? (сх. кв во вложении)
Нужны ли регулирующие поток воздуха "решетки" в санузлах и на кухне, или при такой схеме (с "вентилятором" на крыше) они избыточны, и регулирование должно осуществляться за счет регулируемых клапанов на окнах?
Вероятно, необходимы обратные клапаны на "окошках" вентшахт (на 95% уверен, что жильцы установят и вентиляторы в санузлах, и вытяжки - инженеры Экспл компании согласовывают вытяжки с мощностью не более 400 куб м/час)? Есть ли у вас подобное оборудование?
Существует ли техническое решение для избежания запахов пищи в гостиной?
Заранее благодарен,
Владимир
- Вложения
-
- 104 кв м.png
- План кв с клапанами и окошками вентшахт
- (70.01 КБ) 0 скачиваний
Re: Система вентиляции в 4-комн. квартире 104 кв. м
Добрый день, Владимир!
На адрес Вашей почты были отправлены контакты одного из наших партнеров, который сможет проконсультировать по всем заданным вопросам.
На адрес Вашей почты были отправлены контакты одного из наших партнеров, который сможет проконсультировать по всем заданным вопросам.
